Appartement huren:
niet meer beschikbaar
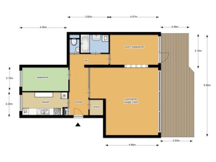
Adama van Scheltemaplein in Delft
91 m2
3 kamers
?
Begindatum
∞
Onbepaalde tijd
Op deze pagina vind je alle informatie over dit Appartement in Delft. Als je vragen hebt kun je contact opnemen met de aanbieder.
Bemiddelingskosten Nee Object Direct bij de eigenaar Borg 900 Garantiestelling Mogelijk Huurtoeslag Niet mogelijk Inkomen eis 3,2 X Maandhuur Bruto Huurtermijn Onbepaalde termijn Oplevering Kaal
We sturen je persoonlijke bericht, samen met alle extra informatie uit je profiel, naar de verhuurder. Op deze manier weet de verhuurder wie je bent en maak je meer kans om gekozen te worden.
Wat is reageren?
Met reageren sturen we gratis alleen je e-mailaders naar de verhuurder. De kans op een reactie is minder groot dan een persoonlijke reactie.